ID:tccshe
时间真的过得飞快,不知不觉中身边不少朋友都陆续结婚生子~
这有了孩子的人啊,对房子似乎又有了新的要求:
要更注重收纳,更注意和陪伴和互动,同时也更向往宽敞的大房子。
就秉着这几点要求,二姑娘也找来一个接近完美的亲子房案例,上面说的几点要求,这套房子都具备了。并且还让人眼前一亮。
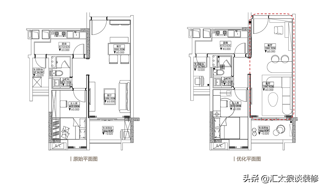
更令人惊叹的是这套套内面积有140㎡的三室两厅,屋主还嫌公共空间面积不够,硬是拆了一面房间的墙,把书房完全融入公共空间,才算完事。
真是很任性了。
▼
ID:tccshe
时间真的过得飞快,不知不觉中身边不少朋友都陆续结婚生子~
这有了孩子的人啊,对房子似乎又有了新的要求:
要更注重收纳,更注意和陪伴和互动,同时也更向往宽敞的大房子。
就秉着这几点要求,二姑娘也找来一个接近完美的亲子房案例,上面说的几点要求,这套房子都具备了。并且还让人眼前一亮。
更令人惊叹的是这套套内面积有140㎡的三室两厅,屋主还嫌公共空间面积不够,硬是拆了一面房间的墙,把书房完全融入公共空间,才算完事。
真是很任性了。
▼